2 Boligens indretning
2.1 Generelle krav og anbefalinger
Bygninger skal udformes og indrettes, så der under hensyn til deres anvendelse opnås tilfredsstillende forhold med hensyn til sikkerhed, sundhed, tilgængelighed og anvendelse for alle samt renholdelse og vedligeholdelse (BR 10 kap. 3.1, stk. 1). Dette udløser en række tilgængelighedsmæssige krav og anbefalinger til indretning af boligens rum, som er beskrevet i de følgende afsnit.
2.1.1 Brugsmæssig kvalitet
Boligen skal være egnet til beboere i alle livsfaser og bør kunne tilpasses den enkelte beboers individuelle og skiftende behov.
Boliger, der indrettes med:
niveaufri adgang til alle indgange
niveaufri adgang til alle rum
et rummeligt bade- og wc-rum
brede døre
lave eller ingen dørtrin
øger muligheden for, at beboerne kan blive boende hele livet.
Adgangsetagen bør som minimum indeholde: køkken, soverum, opholdsrum samt et rummeligt bade- og wc-rum. Alle boligens rum bør planlægges og disponeres, så de er fleksible i deres anvendelse. Derudover bør boligen være besøgsegnet for personer med funktionsnedsættelser.
Boligens brugsmæssige kvaliteter øges, når den kan indrettes på flere forskellige måder, så de enkelte rum kan tilpasses mange forskellige behov og livssituationer.
Figur 2. Den tilgængelige bolig med tilhørende ganglinjer.
En bolig, der planlægges med gode kontraster i farvevalg mellem gulve og vægge samt mellem døre og vægge, gør boligen lettere at orientere sig i for personer med nedsat syn.
Det er vigtigt at påpege, at boligens rum i praksis bør planlægges med udgangspunkt i rummenes funktion.
2.1.2 Enkeltrum
Spise- og opholdsrum er boligens primære rum. Der bør være plads til, at en kørestolsbruger kan komme rundt i rummene og betjene fx vinduer og fjernsyn og køre ind til spise- og sofabord.
Ethvert rum bør kunne møbleres efter hensigten og have et frit manøvreareal på mindst 1,5 × 1,5 meter.
2.1.3 Ganglinjer og passager
Boligens ganglinjer er af afgørende betydning for boligens funktionelle indretning, herunder møblerbarheden. Derfor bør ganglinjerne have en fri bredde på min. 1,0 meter. For de mest anvendte passager anbefales mindst 1,3 meter.
Ved at ganglinjer gøres parallelle med ydervægge, vil det lette orienteringen for blinde og svagsynede (Dansk Blindesamfund, 2014). Kan indfaldende modlys i færdselsretningerne ikke undgås, bør der være mulighed for at afskærme for det.
Der bør ikke være blænding fra belysningsarmaturer.
Ganglinjer bør være så korte, lige og farbare som muligt. Se også afsnit 2.11
Gangbredder.2.1.4 Gulve og dørtrin
Gulve bør være sikre at gå på og være konstruerede til færdsel med kørestol. Færdsel bør ikke besværliggøres med tykke tæppebelægninger eller blanke gulvoverflader, som kan give blændingsgener.
Dørtrin skal være så lave som muligt (maksimum 25 mm) og udformet sådan, at en kørestol let kan passere. Hvis dørtrinet er for højt, kan man forsænke bundstykket i karmen, se figur 3.
For kørestols- og rollatorbrugere vil det ideelle være, at der ikke er dørtrin inde i boligen.
Som erstatning for dørtrin inde i boligen kan man indfælde dørtætningslister på dørbladet, så lyd mellem rummene dæmpes.
Tabel 3. Krav og anbefalinger til dørtrinshøjder.
Figur 3. Eksempel på udformning af dørtrin med forsænket bundstykke.
2.2 Entré og gang
En rummelig entré giver mulighed for at manøvrere en kørestol eller en rollator. Entréen bør have en fri bredde på mindst 1,3 meter. Foran entrédøren bør der indvendigt være et areal på mindst 1,5 × 1,5 meter fri af døren til manøvrering af en kørestol.
Der skal være tilstrækkelige friarealer foran døre og evt. garderobeskabe til manøvrering for en kørestolsbruger. Se afsnit 2.11
Gangbredder og 2.2.3
Skabe og skuffer.2.2.1 Entrédør
Entrédøren bør have en fri bredde på mindst 0,87 meter, så en kørestolsbruger uhindret kan komme igennem døråbningen. Hvis døren går ud til en fælles adgangsvej, skal der være mindst 0,5 meter ved siden af døren modsat hængselsiden, uanset om døren åbner udad eller indad i boligen. Kravet er begrundet i hensynet til kørestolsbrugerens betjening af døren.
Døren bør kunne låses op og åbnes med én hånd og en åbningskraft på højst 25N svarende til en vægt på ca. 2,5 kg.
Døren kan med fordel være forberedt til automatisk åbning og lukning. Lås anbringes bedst 0,8-1,0 meter over gulvet. Det er praktisk med plads til en taskehylde eller bænk uden for entrédøren, så det er nemt at stille ting fra sig, mens døren åbnes, eller man kan sætte sig, mens nøglen findes frem.
2.2.2 Belysning
Belysningen i gangen bør være retningsbestemt for at understrege forløbet af gangen.
Justerbare spotarmaturer kan fungere som almenbelysning. Spejle bør have en lyskilde i hovedhøjde på hver side. Det er vigtigt, at det er personen foran spejlet, der belyses og ikke spejlfladen (Norges byggforskningsinstitut, 1999).
Anbefalede belysningsstyrker for svagsynede i entré og gang ligger i intervallet 300-500 lux.
Figur 4. Gang med retningsbestemt belysning.
2.2.3 Skabe og skuffer
En stående person behøver en fri afstand på 1,0 meter og i hugstilling 1,1 meter ud for skuffer og skabe med skydelåger og udtræksbakker. Behovet for fri afstand er 1,3 meter, hvis skabene har hængslede skabslåger med en bredde på 0,6 meter. Skabslåger kan med fordel monteres med 180-graders hængsel i stedet for standard 110-graders hængsel.
Med en fri afstand på 1,1 meter er det kun i meget begrænset omfang muligt for kørestolsbrugere at betjene skuffer, og da kun fra siden. Det er ofte nødvendigt og altid mere bekvemt at kunne åbne og lukke en skuffe forfra. Behovet for fri afstand ud for skuffer og skabe er derfor mindst 1,5 meter, dog 1,4 meter ved sokkel tilbagetrukket mindst 0,1 meter og med en højde på 0,2 meter.
Skabe er lettest at betjene, når de er udstyret med skuffer eller skydedøre og udtræksbakker. Fordelen ved skydedøre er, at de ikke optager plads i rummet, og at kørestolsbrugeren ikke behøver at flytte sig for at åbne skabet.
Ved garderobeskabe er det vigtigt for kørestolsbrugere, at bøjlestang med tøj kan trækkes ud og sænkes. Hvis bøjlestangen er fastmonteret, bør den placeres i en højde på 1,2 meter af hensyn til kørestolsbrugeres rækkevidde. En fri afstand ud for garderobeskabet på 1,7 meter er i reglen nødvendig, for at kørestolsbrugere bekvemt kan anvende garderobeskabet.
Figur 5. Mål på plads og højder ved skabe og skuffer.
2.3 Køkken
2.3.1 Generelle krav
Ifølge BR10, kap. 3.3.1, stk. 3, skal en bolig indeholde et køkken, enten som et selvstændigt rum, i forbindelse med beboelsesrum eller som en kogeniche i boliger på under 50 m2.
I henhold til BR10, kap. 3.3.1, stk. 7, skal køkkener skal være indrettet, så køkkenarbejdet kan foregå på en hensigtsmæssig og betryggende måde.
Køkkener bør være forberedt, så de kan tilpasses forskellige behov og ændrede livssituationer. Det er vigtigt, at der kan etableres mulighed for at kunne arbejde i køkkenet såvel fra en siddende som stående stilling.
I sin ph.d.-afhandling Det multifunktionelle køkken: En undersøgelse af og forsøg med særlige brugerbehov gør Storgaard (2000) rede for forsøg med og udvikling af et multifunktionelt køkken til en kørestolsbruger. Køkkenet, som blev udført i prototype i fuld skala i en lejlighed i Århus, blev i en længere periode afprøvet af forskellige brugere på dagligdagens vilkår.
Den selvhjulpne kørestolsbruger har behov for:
at der er gode friarealer i køkkenet
at kogeplader, ovn, vask og køleskab er placeret tæt på hinanden
at der er fri benplads under vask, tilberedningspladser og kogeplader.
Når der skal tages hensyn til en bred brugergruppe, opstår der ofte modstridende krav og ønsker. Men multifunktionelt køkkeninventar, som tilgodeser de vekslende behov, en beboer har gennem sin levetid, rummer muligheder for tilpasninger. Det kan bidrage til, at brugeren kan fortsætte med at udføre ønskede aktiviteter og derved forbliver så selvhjulpen som muligt så længe som muligt (Storgaard, 2000).
2.3.2 Køkkenets placering
Der bør være nem adgang fra køkken til opholdsrum, og der bør nemt kunne skabes visuel og auditiv kontakt mellem personer, der opholder sig i de to rum. Dette kan opnås ved, at de to rum står i åben forbindelse med hinanden eller ved en dørgennemgang. Døren kan udføres som en bredere skydedør, så der er god kontakt mellem rummene. Ligger køkken og opholdsrum ikke ved siden af hinanden, bør dørene til rummene placeres over for hinanden eller i vinkel, så der er mulighed for kontakt mellem de to rum.
Der bør kunne indrettes spiseplads i umiddelbar nærhed af køkkenbordsopstillingen for at opnå korte færdselsveje.
Det er ønskeligt, at der fra køkkenet er god visuel og auditiv kontakt til omgivelserne udenfor, blandt andet af hensyn til børns leg og nem adgang til udendørs opholds- og spiseplads.
2.3.3 Manøvrearealer
Foran køkkenbord, hårde hvidevarer og skabe bør der være eller nemt kunne etableres manøvrearealer på mindst 1,5 × 1,5 meter (se tabel 4. anbefalede manøvrearealer i køkken.).
Er der fri benplads under køkkenbordets arbejdspladser, kan dette areal indgå som en del af manøvrearealet og derved mindske behovet for fri afstand.
Tabel 4. Anbefalede manøvrearealer i køkken.
2.3.4 Køkkenets indretning
Det er vigtigt, at kogeplader, tilberedningsplads, vask, ovn og køleskab placeres hensigtsmæssigt i forhold til hinanden.
Et ensidigt køkken med alle elementer på samme væg giver for stor afstand mellem yderpunkterne og er derfor generelt ikke egnet for kørestolsbrugere. Et tosidigt køkken er heller ikke egnet for personer i kørestol, fordi brugeren skal kunne vende 180 grader under tilberedningen. Hvis denne type alligevel anvendes, er det vigtigt, at vask og kogeplader er placeret på samme side, så man undgår at flytte gryder m.m. fra det ene bord til det andet.
Det L-formede køkken er at foretrække ved indretning af et køkken. Afstandene mellem arbejdspladserne er korte, og der er god plads til kørestolen.
Med en arbejdsplads placeret i hjørnet af en vinkelopstilling vil man fra siddende stilling kunne nå et større stykke af køkkenbordet uden at flytte sig. Endvidere vil vinkelopstillingen ofte være den mest pladsøkonomiske måde at indrette et køkken på, med eller uden spiseplads.
Vask og kogeplader bør sidde i en sammenhængende bordplade, så det er muligt, hvis bordpladen er varmefast, for personer med få kræfter at ’trække’ gryder, pander og lignende hen over bordet. Dette øger sikkerheden betydeligt mod eksempelvis skoldning ved madlavning, idet risikoen for at tabe varme eller tunge ting mindskes.
Figur 6. L-formet køkken med højdeindstillelige og mobile køkkenelementer.
2.3.5 Højder
Højder på køkkenbord, vask, kogeplader, ovn, overskabe m.m. bør kunne tilpasses, så arbejdsfladerne er ergonomisk korrekte.
Køkkenbord med vask, kogeplader og tilberedningsplads bør kunne varieres i højdeintervallet 0,7-0,9 meter. Dette interval gør det muligt for både kørestolsbrugere og stående at arbejde i køkkenet. Køkkenbordet vil som regel være enten gulvstående eller ophængt på vægskinner.
Under faste køkkenbordsplader bør der være en frihøjde på mindst 0,68 meter, så kørestolsbrugere kan komme ind under med benene.
2.3.6 Sokler
Sokler bør være mindst 0,2 meter høje af hensyn til kørestolens fodstøtter og brugerens fødder.
2.3.7 Overskabe
Overskabe bør monteres på et hæve-sænkesystem, der kan sænke skabssektionerne og føre dem frem til forkant af køkkenbordet til en højde ca. 0,3 meter over bordpladen. På denne måde kan også kørestolsbrugeren nå hylder i skabene.
Højdereguleringen bør være fjernbetjent.
2.3.8 Underskabe
Underskabe under vask, kogeplads og tilberedningspladser bør nemt kunne fjernes, hvis der er behov for at arbejde i siddende stilling. Er der kun lejlighedsvis behov for, at underskabene fjernes, kan de monteres på hjul og eventuelt også fungere som frasætningspladser under arbejdet.
Underskabe bør være udformet som skuffeelementer.
2.3.9 Skabslåger og skuffer
Skabslåger og skuffer bør være letgående, hængslede hensigtsmæssigt i forhold til arbejdsgange og lette at betjene med én hånd og lille kraft både fra siddende og stående stilling.
Hvis underskabe udformes med hængslede låger, bør disse kunne åbnes 180 grader, så kørestolsbrugeren uden problemer kan hente ting i skabene. Brede, hængslede skabslåger i overskabe er ikke egnede for kørestolsbrugere, blinde og svagsynede, idet de er besværlige at åbne. Der er endvidere risiko for, at blinde og svagsynede kan støde hovedet på en halvt åbentstående låge.
Skabslåger kan med fordel være af lift-up-typen. Sidehængslede låger kan udformes som dobbeltlåger, og den enkelte låge bør ikke være bredere end 0,3-0,4 meter, så den ikke rager ud over bordkanten i åben tilstand. Låger kan også udformes som skydelåger.
For udviklingshæmmede og personer med erhvervet hjerneskade kan det blive lettere at anvende køkkenet, hvis skabslåger forsynes med letforståelige piktogrammer, der viser, hvor ting er placeret.
2.3.10 Greb
Greb bør udformes som bøjlegreb og være så store, at de kan betjenes med lukket hånd.
2.3.11 Udtræksplader
Udtræksplader er et godt supplement til bordpladen, og pladerne udnyttes bedst, hvis de er monteret på letgående udtræksskinner, så arbejdsfladen bliver så stor som muligt.
2.3.12 Affaldsbeholdere
Affaldssortering i den enkelte husstand er et stigende krav og afføder behov for plads til beholdere til de forskellige affaldsfraktioner. De enkelte kommuner har på basis af Bekendtgørelse om affald (Affaldsbekendtgørelsen) udarbejdet kommunale regulativer med specifikke forhold vedrørende sortering, beholdere og deres placering (Miljøministeriet, 2012). De kommunale krav til affaldssortering og -håndtering kan også have indflydelse på affaldssorteringen indendørs og på antal, placering og udformning af affaldsbeholdere i køkken og bryggers.
Affaldsbeholdere til kildesortering og posestativer bør være nemme at betjene. Affaldsposer bør være nemme at montere med én hånd. Posestativet placeres bedst i et stativ under køkkenvask eller på hjul eller skinner i den eventuelle fri plads i skabet.
2.3.13 Vask
Vasken bør have et tilbageliggende, fleksibelt afløb, ligesom vandtilførselen bør være fleksibel af hensyn til højderegulering. Stålvaske bør være underlimede, så der ikke er kant mellem vask og bordplade, samt isolerede på undersiden, så kørestolsbrugere ikke brænder sig.
2.3.14 Kogeplader
Det er en fordel for personer med få armkræfter, at kogepladerne har plane overflader (keramiske kogeplader). Det er derimod ikke hensigtsmæssigt for en blind, idet den pågældende ikke vil være i stand til at mærke, hvor gryder og pander skal placeres, med mindre de er tændt. Betjening bør være med drejeknapper med faste hak. 'Fingertouch' og 'display' bør undgås af hensyn til synshandicappede.
2.3.15 Ovn/mikroovn
Ovne bør placeres med underside i bordhøjde eller automatisk kunne sænkes til en god arbejdshøjde med frasætningsplads ved en af siderne.
2.3.16 Køle-fryseskab
Køle-fryseskab bør anbringes med laveste hylde 0,4 meter over gulv og med øverste hylde maks. 1,2 meter over gulv. Køleskabets låge bør være forsynet med et langt bøjlegreb. Det er vigtigt, at køleskabets åbningsside vender mod køkkenbordet, så afstanden fra køleskabet til køkkenbordet er så kort som muligt.
2.3.17 Opvaskemaskine
Opvaskemaskine bør anbringes med nederste kurv 0,4 meter over gulv i bekvem betjeningshøjde for kørestolsbrugere.
2.3.18 Overflader
Alle overflader i køkkenet bør være robuste og nemme at gøre rene og vedligeholde.
2.3.19 Betjeningsgreb- og betjeningspanel
Betjeningsgreb på blandingsbatteri og hårde hvidevarer, herunder emhætte, bør kunne betjenes fra både venstre og højre side med én hånd og lille kraft fra både siddende og stående stilling.
Indstillingsmuligheder bør være nemme at forstå og kunne ses, føles og høres (som klik).
Betjeningspanelet til kogeplader samt højdeindstilling af køkkenborde, overskabe m.m. kan med fordel placeres i bordets sarg.
2.3.20 Belysning
Ved alle arbejdspladser i køkkenet bør der ud over godt dagslys og god almenbelysning være god arbejdsbelysning med ikke-blændende lys fra både højre og venstre side. Lyset bør have gode farvegengivende egenskaber. For at sikre gode synsforhold bør overfladerne være diffust reflekterende, gerne ensfarvede og med en farve, der er i god kontrast til køkkenredskaber og -service.
Armaturer placeret under overskabe bør skærmes med fx en forkantliste for at undgå blænding (Norges byggforskningsinstitut,1999).
Anbefalede belysningsstyrker for svagsynede i køkken ligger i intervallet 500-1000 lux, stærkest på arbejdsflader som fx kogeplader og vask.
2.3.21 Spiseplads
Spisepladsen i køkken og opholdsrum bør kunne indrettes så fleksibelt, at den kan udvides med ekstra plader, så der er den nødvendige plads til en kørestolsbruger ved bordet. Det vil sige, at der skal kunne etableres en fri afstand på mindst 1,5 meter og frihøjde under eventuel sarg på mindst 0,68 meter ved en eller flere af bordets sider, uden at pladsen for øvrige siddepladser reduceres. Dette lader sig som regel bedst gøre ved, at passagebredder mellem inventar og de enkelte møbelgrupper samt mellem møbelgrupperne indbyrdes dimensioneres så rigelige, at uhindret passage er mulig.
Ved spisebordet bør der være lampeudtag for ekstra arbejdsbelysning, og spisebordet bør være placeret, så det indfaldende dagslys kommer fra siden.
Spisepladser bør belyses over hele bordfladen. En regulerbar pendel med nedadrettet skærm er en god løsning. Underkant af lampen bør placeres lidt over øjenhøjde, ca. 0,5-0,7 meter over bordfladen. Lange spiseborde bør udstyres med to-tre mindre pendler (Norges byggforskningsinstitut, 1999).
2.4 Opholdsrum
2.4.1 Generelle forhold
Et opholdsrum bør have tilstrækkelig plads og udformes, så det kan indrettes på forskellige måder med almindelige møbelopstillinger som spiseplads, sofagruppe og tv, så en person i kørestol ubesværet kan bruge møbelgrupperne og enkeltmøblerne samt forflytte sig fra kørestol til siddemøbler. Der bør derfor beregnes et friareal på mindst 1,5 × 1,5 meter ved hver møbelgruppe, som det fremgår af figur 7.
Figur 7. Opholdsrum med ganglinjer og vendearealer for kørestolsbrugere.
Rummet bør give mulighed for, at væggene møbleres med almindelige møbler som reoler, skabe og lignende, uden at det går ud over passagebredderne mellem møbelgrupperne indbyrdes og mellem møbelgrupperne og de vægstående møbler.
Figur 8. Rækkehøjde og plads til kørestol.
Møbelgrupperne bør så vidt muligt kunne placeres, så det indfaldende dagslys kommer fra siden.
Vinduer og terrasse- eller altandøre bør være udformet, så det er nemt at afblænde for eventuelt generende sollys med markiser, persienner, gardiner eller lignende.
Rummet bør orienteres med solindfald fra syd. Orienteres det mod vest, bør der også være solindfald til rummet fra øst.
2.4.2 Placering
Opholdsrum bør have direkte adgang fra entré og være placeret nær køkken, eventuelt med direkte adgang hertil.
Ved længerevarende sengeleje er det en fordel, at opholdsrummet ligger i tæt forbindelse til et soverum. Det kan øge boligens fleksibilitet, hvis væggen mellem sove- og opholdsrum er flytbar. Ved adskillelse med en bred skydedør vil rummene i reglen kunne anvendes sammenhængende.
Fra opholdsrummet bør der være direkte og niveaufri udgang til det fri, enten til altan, terrasse eller have, så der kan etableres god kontakt til ophold ude.
2.4.3 Belysning
En belysningsstyrke på 500-800 lux sikrer, at svagsynede kan orientere sig i rummet. Ved nærsynsopgaver, som fx at læse, skrive eller sy, kan svagsynede have brug for en belysningsstyrke, der ligger i intervallet 1500-3000 lux.
2.4.4 Kontakter og udtag
Der bør være tilstrækkeligt med lampeudtag, stikkontakter, antenne-, tele- og datastik til at betjene varierende møbelopstillinger. Kablerne kan eventuelt trækkes i et skinnesystem, så nye udtag nemt kan etableres.
For at udtag m.m. kan betjenes af alle, også ældre og bevægelseshæmmede, bør disse placeres mindst 0,4 meter og højst 1,2 meter over gulv.
Afbrydere bør have stor overflade og stå i kontrast til væggens farve. De udføres bedst, så tænd- og slukfunktionen både kan føles, ses og høres (som klik).
2.5 Soverum
2.5.1 Generelle forhold
Det er hensigtsmæssigt, at mindst ét soverum i boligen kan anvendes af en kørestolsbruger. Der bør i dette rum være mulighed for flere sengeopstillinger. Mindst ét soverum bør have mulighed for opstilling af dobbeltseng.
En seng, der skal kunne anvendes af en kørestolsbruger, skal på den ene side have en fri afstand på mindst 1,5 meter. For at passere langs en seng eller en sengegavl behøver en kørestolsbruger en fri afstand på mindst 0,9 meter. Målangivelser i soveværelser fremgår af figur 9.
Der bør mindst tillægges et 0,60 meter bredt areal ved en af vægsiderne til placering af garderobeskabe. Det øger fleksibiliteten, hvis skabene nemt kan flyttes ved ændrede sengeopstillinger. Mål på skabe og skuffer fremgår af figur 4.
Figur 9. Soverum med indgange fra entré og badeværelse og med plads til dobbeltseng.
2.5.2 Placering
Det er en fordel, hvis soveværelset ligger ved siden af bade- og wc-rummet, eller at døren til bade- og wc-rummet er placeret direkte over for døren til soveværelset. Ved sideliggende bade- og wc-rum er der mulighed for at etablere en døråbning til soveværelset i den adskillende væg, hvis væggen ikke vandpåvirkes, er sanitetsbærende eller installationsførende.
Er der direkte adgang fra soverum til bade- og wc-rum, kan lysindfald fra baderummet genere den sovende. Der bør derfor være en alternativ adgangsmulighed til baderummet, almindeligvis gennem entréen.
Har et par hver sit soverum, eller hvis der er tale om forældresove-rum og barnesoverum, vil det være hensigtsmæssigt for kontakten, at rummene ligger ved siden af hinanden med dør imellem. Hvis rummene ligger over for hinanden, bør dørene placeres over for hinanden.
Der bør være mulighed for at se ud på omgivelserne fra liggende stilling. Det kan opnås med en glasdør til det fri eller med en fransk altan. Det giver samtidig gode muligheder for udluftning og luftning af sengetøj.
2.5.3 Belysning
Sengelampe, som bør kunne drejes, bør placeres ca. 0,5-0,6 meter over madrassen (Norges byggforskningsinstitut, 1999).
Anbefalet belysningsstyrke for svagsynede i soveværelse ligger på 200 lux, dog mindst 500-750 lux i forbindelse med sengebelysning.
2.6 Bade- og wc-rum
2.6.1 Generelle krav
I BR10, kap. 3.3.2, stk. 1-2, fremgår det, at der i boligens adgangs-etage skal være mindst ét wc-rum med niveaufri adgang med en hensigtsmæssig indretning og størrelse og med en håndvask i wc-rummet.
En fri afstand på mindst 1,1 meter ud for håndvask og wc kan ifølge BR10 opfylde kravet om en hensigtsmæssig indretning, men større afstand øger komforten og anvendeligheden.
I forhold til Almenboligloven skal der i almene familieboliger, der opføres som tæt, lavt byggeri i én etage med et bruttoetageareal på 85 m2 eller derover, være mindst ét bade- og toiletrum med et frit manøvreareal med en diameter på mindst 1,5 meter (Lov om almene boliger m.v., § 109, stk. 2). Se målangivelser for wc- og baderum i figur 10.
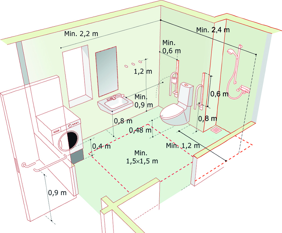
Figur 10. Boligens bade- og wc-rum med målangivelser.
I boliger med mere end ét bade- og wc-rum bør det primære bade- og wc-rum have den største grad af tilgængelighed, og det bør ligge i adgangsetagen.
Rummet skal kunne bruges af selvhjulpne kørestolsbrugere, men bør også være forberedt til at kunne tilpasses personer med handicap med yderligere behov.
Faldulykker er de hyppigst forekommende ulykker i bade- og wc-rum. Det bedste tiltag for at forebygge faldulykker er at opsætte håndtag og etablere skridsikker belægning, i særdeleshed i og ved bruseplads og evt. badekar (SINTEF Byggforsk, 2011).
2.6.2 Størrelse
For at være anvendeligt for de fleste selvhjulpne kørestolsbrugere bør et bade- og wc-rum være så stort, at en person i kørestol kan komme ind og lukke døren, komme hen til wc og håndvask og kunne benytte dem. Til denne manøvre bør der være en fri afstand på 1,5 meter ud for de sanitære installationer, fri af dørens opslag.
For at efterleve Almenboliglovens krav skal der i almene familieboliger, der opføres som tæt, lavt byggeri i én etage med et bruttoetageareal på 85 m2 eller derover, være mindst ét bade- og toiletrum med et frit manøvreareal med en diameter på mindst 1,5 meter.
Dette svarer til kvalitetsniveau B i henhold til SBi-anbefalinger (de Place Hansen, 2014).
Foran wc'et, håndvasken og brusepladsen bør der derfor være mindst 1,5 meter til modstående væg eller faste genstande.
Den fri afstand kan eventuelt gå ind under håndvask. Dette forudsætter, at håndvasken ikke placeres i skab, eller at et eventuelt skab kan fjernes.
Hvis der etableres en fri afstand på 1,7 meter ud for sanitetsgenstande, får rummet en stor generel anvendelighed også for ikke-kørestolsbrugere, idet rummet bliver møblerbart med 0,6 meter dybe elementer, eksempelvis vaskemaskine og tørretumbler. Den frie afstand på 1,7 meter giver gode arbejdsforhold for en hjælper, hvis en person har brug for hjælp til badet.
Ved siden af wc'et bør der være en fri bredde på mindst 0,9 meter. Målangivelserne for boligens bade- og wc-rum fremgår af figur 10. De anbefalede manøvrearealer i bade- og wc-rum fremgår af tabel 5.
Tabel 5. Anbefalede manøvrearealer i bade- og wc-rum.
2.6.3 Loft
Loftet bør udføres med en bæreevne forberedt for montering af en loftlift, fastgjort i et skinnesystem på loftet. Det skal dog sikres, at der er tilstrækkelig fri højde i rummet til, at der kan opnås nødvendig plads til at arbejde med lodrette løft og forflytninger.
2.6.4 Gulv
Gulvet bør være nemt at renholde og være skridhæmmende i både våd, tør og sæbepåvirket tilstand. Det anbefales, at der etableres gulvvarme, som sikrer hurtig tørring.
I den vandbelastede del af badeværelset skal der være fald mod afløbet. Faldet bør være 1-2 pct. Under badekar og fast inventar bør faldet være mindst 2 pct. Gulvet må ikke have bagfald eller lunker, idet vand i henhold til bygningsreglementet skal afledes til gulvafløb.
Gulvet skal udformes som et bassin. En vandtæt membran i gulve eller en vandtæt belægning på gulve skal føres ubrudt mindst 100 mm op ad vægge.
For at sikre bassinvirkningen ved døre udføres gulvet med fald mod gulvafløb, så der er en niveauforskel på 30 mm mellem risten på gulvafløbet og gulvet lige inden for døren. Alternativt skal der være en (støbt) opkant på 20-25 mm ved dør, eventuelt suppleret med rampe (Brandt et al., under udarbejdelse).
Et bruseområde uden kant eller niveauforskel kan gøre rummet mere fleksibelt i forhold til brug af rollator eller kørestol, men det skærper behovet for korrekt fald på gulv mod afløb (de Place Hansen et al., under udarbejdelse).
For at hindre vand i at løbe ud over gulvet kan brusepladsen forsænkes indtil 15 mm med skrå affasning mellem gulv og bruseplads. Hvis der ved denne løsning ønskes vandret gulv i den øvrige del af rummet, skal der være en mindst 10 mm høj skinne under døren, som hindrer vand fra gulvet i at rende ud ved døråbningen (Brandt, 2013).
Gulvafløbet skal være let tilgængeligt for rensning af vandlåsen og må derfor ikke placeres under skabe eller lignende. Gulvafløb bør placeres uden for rummets ganglinjer.
2.6.5 Vægge
Det anbefales, at to modstående vægge har en bæreevne forberedt til eventuel opsætning af en vægmonteret loftlift. Derudover anbefales det, at væggen bag wc er forberedt til opsætning af opklappelige armstøtter på begge sider af wc’et. Armstøtter skal kunne bære en persons fulde vægt.
2.6.6 Døre og dørgreb
Uden for døren til bade- og wc-rum bør der være et vandret manøvreareal på mindst 1,5 × 1,5 meter, fri af døropslaget og i samme niveau som gulvet i bade- og wc-rummet.
Døren bør udføres uden dørtrin og bør have en fri åbning på 0,87 meter af hensyn til, at en kørestolsbruger har mulighed for uhindret at passere døråbningen. Døren bør være letgående og udadgående af sikkerheds- og pladsmæssige hensyn.
En udadgående dør bør på indersiden forsynes med et 0,5 meter langt, vandret tilbagetrækningsgreb (bøjlegreb) monteret 0,9 meter over gulvet. Se figur 10.
2.6.7 Wc
Wc er den sanitetsinstallation, der vanskeligst kan flyttes. Ved planlægningen af wc-rum og badeværelser bør der derfor skabes mulighed for, at håndvasken kan flyttes til en placering, der giver et fornødent friareal ved wc-siderne alt efter brugerens behov. Hvis der skal installeres toilet med vaske- og tørrefunktion, vil den elektriske tilslutning kræve en afstand på mindst 1,2 meter mellem selve toilettet og en bruser for at undgå vandpåvirkning af installationen (de Place Hansen et al., under udarbejdelse).
2.6.8 Håndvask og armatur
Håndvask bør placeres med oversiden 0,8 meter fra gulv. Håndvask, armatur og håndklæde bør placeres, så det kan nås siddende på wc'et.
2.6.9 Bruseplads
Brusepladsen bør være mindst 0,9 × 0,9 meter. Det anbefales, at væggen er forberedt til opsætning af gribeegnede støttegreb. Grebene kan være både lodrette og vandrette. I sidste tilfælde skal grebene monteres 0,8 meter fra gulv.
Det anbefales ligeledes, at væggen er forberedt til at kunne bære et brusesæde til en person. Brusesædet monteres 0,2 meter fra hjørne og med en siddehøjde på ca. 0,5 meter.
Bruserens blandingsbatteri placeres 0,9 meter over gulv. Regulering af bruser bør kunne foretages siddende på brusesædet. Vandtemperaturen bør kunne styres af en termostat, og vandhanerne bør have tydelige røde/blå symboler.
Ideelt set bør brusepladsen ikke have kant. Hvis dette ikke er muligt, bør kanten højst være 15 mm høj og skråt affaset.
2.6.10 Badekar
Badekar bør undgås eller let kunne fjernes. Alternativt bør badekar suppleres med bruseplads. Evt. badekar bør have siddeplads i karrets ene ende.
2.6.11 Blandingsbatteri og greb
Bruser og blandingsbatteri bør placeres, så det også kan benyttes siddende på wc. Termostatindstilling, åbningsindstilling og greb for skift til bruser og håndbrusers højdeindstilling bør kunne betjenes siddende, være énhåndsbetjente og anvendes med lukket hånd og lille kraft. Målangivelser for bade- og wc-rum fremgår af figur 10.
Der bør være tydelig følbar og visuel markering af indstilling.
Armaturerne skal kunne betjenes inden brug af bruser eller badekar.
2.6.12 Belysning
Pladsen foran spejlet bør være særlig godt belyst med en lyskilde på hver side af spejlet (SINTEF Byggforsk, 2011). Blænding fra lyskilder ved spejl bør undgås, fx ved at lyskilden rettes ned mod håndvask.
Anbefalede belysningsstyrker for svagsynede i badeværelse ligger på 300-500 lux.
2.7 Installationer og greb i boligen
Installationer som afbrydere, stikkontakter, tele- data- og antennestik, evt. Smart Home-betjeningspaneler til åbning og lukning af døre og vinduer samt til ventilation og varme bør være lette at lokalisere og bør derfor være i kontrastfarve til væggen.
Installationerne bør placeres i eller kunne flyttes til en højde på mindst 0,4 meter og helst 0,9-1,2 meter over gulvet og mindst 0,5 meter fra indvendigt hjørne.
Afbrydere udføres bedst, hvis tænd- og slukfunktionen både kan føles, ses og høres (som klik).
Installationerne skal kunne betjenes af både siddende og stående.
2.7.1 Radiatorventiler
Radiatorventiler bør drejes ud i rummet i stedet for langs med væggen. Tal med god størrelse og kontrast anbefales.
2.7.2 Skab med fx sikringer og HFI-relæ
Skab med sikringer, målertavle og HFI-relæ m.m. samt individuel varmeinstallation, varme- og vandmålere og lignende bør placeres 0,8-0,9 meter og højst 1,2 meter over gulvet og mindst 0,5 meter fra indvendigt hjørne.
2.7.3 Greb
Greb bør udformes, så de i kropsnær afstand samt både i siddende og stående stilling kan énhåndsbetjenes med lukket hånd og lille kraft.
2.8 Altan og terrasse
2.8.1 Generelle forhold
Den direkte tilknytning mellem boligen og private udeopholdsarealer som altan og terrasse er af stor betydning for livskvaliteten for personer, der har vanskeligt ved at færdes ude, også i forbindelse med opsyn med mindre børn.
Det vil virke fremmende for kontakten mellem beboerne i en bebyggelse og øge trygheden, hvis det fra de private udeopholdsarealer er nemt at komme i kontakt med naboer og forbipasserende i bebyggelsen.
2.8.2 Størrelse
Størrelsen af en altan eller terrasse har betydning for hvilke typer af ophold, der er mulige. Størrelsen bør være tilstrækkelig til, at der let kan manøvreres mellem møbler og andet inventar, fx barnevogn, rollator eller kørestol; i praksis mindst 1,5 meter dyb. Selve døråbningen mod det udendørs opholdsareal bør være størst mulig for at skabe en tæt sammenhæng mellem inde og ude, når vejret tillader det.
Hel eller delvis overdækning af en terrasse eller altan kan øge anvendeligheden og give mulighed for ophold udendørs, når mørket falder på, og duggen og temperaturen falder, eller når det regner. En eventuel overdækning må dog ikke hindre dagslyset i boligens opholdsrum.
En altan eller terrasse med en størrelse på mindst 3 meter i bredden og 2 meter i dybden kan rumme spiseplads op til fire personer eller tre personer, hvis den ene er kørestolsbruger.
En terrasse, der er 7 meter bred og 3 meter dyb, giver mulighed for en stor spiseplads med grill samt sol- og legeområde og manøvreplads for barnevogn og/eller kørestol.
Hvis boligen kun har adgang til én altan eller én terrasse, bør denne være orienteret mod syd, sydvest eller vest (SINTEF Byggforsk, 2013). Manøvreareal på altan eller terrasse fremgår af figur 11.
Figur 11. Altan eller terrasse med plads til kørestolsbruger.
Se endvidere den kommende SBi-anvisning Småhuse – indretning og funktion (de Place Hansen et al., under udarbejdelse).
2.8.3 Altanbrystninger
Altanbrystninger kan udføres i en kombination af tæt og åben brystning. Den nedre, tætte del skal hindre træk. Den øvre, åbne del skal sikre bedst muligt lysindfald og udsyn.
Den nedre del kan helt eller delvis udføres med glas, som bedst sikrer udsynet til omgivelserne fra bagvedliggende rum.
2.8.4 Udsyn
Som regel etableres der bedst udsyn fra boligens forskellige rum, hvis altanen ikke dækker hele rumbredden. Det kan opnås, hvor altanen indgår i en vekslende takt med karnapper, eller hvor boligerne forskydes i forhold til hinanden, så der i nogle rum kan etableres hjørnevinduer, der giver mulighed for at se til to sider. Dette kan være en kvalitet, men udformningen bør dog imødegå indbliksgener.
2.8.5 Værn
Højden af værnet skal være mindst 1,2 meter, og åbninger skal udformes, så børn sikres på betryggende måde fra at komme i klemme eller kunne kravle op.
Lodrette åbninger bør højst være 89 mm brede.
2.8.6 Tagterrasser
Tagterrasser giver større muligheder for møblering, grill og brug som social arena. Hvis tagterrassen er fælles for flere boliger og har god tilgængelighed for alle beboere, kan den være et godt supplement til en privat altan/terrasse (SINTEF Byggforsk, 2013). Dette forudsætter dog, at der er niveaufri adgang i form af elevator hertil.
2.9 Vinduer
2.9.1 Generelle krav
Vinduer bør være lette at åbne og lukke.
For at et vinduesgreb skal kunne nås fra en kørestol, bør det monteres i mindst 0,4 og højst 0,9-1,2 meters højde. Ved dybe vinduesnicher bør den maksimale højde reduceres. Det skal kunne betjenes med én hånd og lille kraft. Grebet bør være 0,1 meter langt og have mindst 30 mm frigang. Grebet kan med fordel have endestop, så hånden ikke ’glider af’, hvis man har nedsat kraft i hænderne.
Hvis grebet kan énhåndbetjenes med lukket hånd, vil også personer med nedsat håndfunktion kunne åbne og lukke vinduet.
Det vil være en fordel, hvis vinduer samt altan- og terrassedøre er udformet med – eller er forberedte til – automatisk betjening af åbne- og lukkefunktionen.
Vinduer samt altan- og terrassedøre bør ikke have brede sprosser i øjenhøjde, hverken for stående, siddende eller liggende.
2.9.2 Brystningshøjde
Brystningshøjden bør i opholdsrum ikke være større end 0,7 meter, så en person kan se ud på omgivelserne fra lav siddestilling jf. figur 12. Det gælder både kørestolsbrugere og børn. I soverum kan det have stor betydning at kunne se ud på omgivelserne fra liggende stilling, enten gennem en glasdør eller en fransk altan.
Figur 12. Udsyn og brystningshøjde.
2.9.3 Karnap- og hjørnevinduer
Karnapvinduer har den fordel, at det ved ophold i karnappen er muligt at se ud til tre sider, det vil sige også på langs ad boligen. Hjørnevinduer giver udkik til to sider. Begge løsninger giver bedre udsyn og større oplevelsesrigdom end almindelige vinduer. Dette kan især være af betydning for personer, der tilbringer megen tid i boligen.
2.10 Dørbredder
2.10.1 Generelle krav
Døre i boligens adgangsetage skal have en fri passagebredde på mindst 0,77 meter. Dørtrin må maksimalt være 25 mm høje i forhold til gulvniveau (BR 10, kap. 3.2.1, stk. 4, og 3.3.3, stk. 1).
Generelt er 0,77 meter dog for lidt for mange kørestolsbrugere, idet det stiller store krav til manøvreringsevne for at undgå at ramme karme og dørplade. Øget fri passagebredde og reduktion af højden af dørtrin ved fx anvendelse af forsænkede bundstykker kan mindske slid på boligen.
Den fri passagebredde måles, når døren er åbnet 90 grader, og er den mindste afstand mellem dørbladet og den modsatte karm.
Krav og anbefalinger til passagebredde gennem døre fremgår af tabel 6.
Tabel 6. Krav og anbefalinger til fri passagebredde gennem døre.
Det anbefales, at mindst én dør til hvert rum i boligen har en fri åbning på mindst 0,87 meter svarende til kvalitetsniveau B.
Denne bredde tillader, at de fleste personer i kørestole kan passere uden problemer og kan afhængig af dørens konstruktion opnås med en hængslet dør med den modulære betegnelse 10M. En skydedør kan kræve et murhul på mindst 11M for at opnå en fri bredde på 0,87 meter, afhængig af dørens udformning. Mindste fri passagebredde ved døre fremgår af figur 13.
Figur 13. Mindste fri passagebredde ved hængslet dør og skydedør.
2.11 Gangbredder
2.11.1 Generelle krav
I henhold til BR10, kap. 3.3.4, stk. 1, skal boligens vindfang, forstue, gange og lignende adgangsrum indrettes på en sådan måde, at de i deres fulde bredde kan passeres uhindret.
Tilstrækkelig bredde i adgangsrum er afgørende for en boligs funktionalitet.
En gangbredde på mindst 1,0 meter kan opfylde kravet til indretning af adgangsrum og gør, at to personer kan passere hinanden uhindret. Gangen vil dog være vanskelig at møblere. Hvis en person fx skal kunne hjælpe en anden med at tage overtøj på, kræves mindst 1,3 meter.
Gange med døre i siden bør være mindst 1,3 meter brede, for at en person i en manuel kørestol kan dreje 90 grader og passere ind gennem en dør med mindst 0,77 meter fri bredde. Dette kræver dog gentagne manøvrer. En gangbredde på mindst 1,5 meter anbefales dog, så vægge og karme ikke påkøres så let jf. figur 14. Der bør endvidere sikres ét eller flere steder i gangforløbet med 1,5 × 1,5 meter frit vendeareal til kørestolsbrugere. Krav og anbefalinger til gangbredder fremgår af tabel 7.
Tabel 7. Krav og anbefalinger til gangbredder.
Figur 14. Anbefalet gangbredde.
2.12 Trapper i boligen
2.12.1 Generelle forhold
Almindeligvis indgår trapper ikke i en tilgængelig bolig. Men da denne anvisning også er rettet mod ombygning af eksisterende boliger, hvor trapper kan forekomme, er der nedenfor nævnt de væsentligste forhold vedrørende trapper, der bør tages i betragtning.
BR10 indeholder ikke krav til udformning af trapper inde i boliger. En trappe i boligen bør imidlertid leve op til det generelle funktionskrav om at være god og sikker at gå på (BR10, kap. 3.1, stk. 1). På denne bagrund er en række af de krav og vejledninger vedrørende udformning af trapper, som gælder i fælles adgangsveje ved etageboligbyggeri og i offentligt tilgængelige bygninger, også relevante for trapper i boliger (BR10, kap. 3.2.2).
Udformning af en trappe i boligen bør planlægges omhyggeligt, så den er god at gå på for alle typer af beboere på tværs af aldersgrupper og risiko for fald og uheld minimeres (de Place Hansen et al., under udarbejdelse).
Færdsel på trin og trapper i boligen er en hyppig årsag til faldulykker. De fleste ulykker sker ved færdsel ned ad trappen. Specielt børn, ældre, gangbesværede samt synshandicappede er udsatte (SINTEF Byggforsk, 2005).
En vigtig faktor med henblik på at nedsætte snublerisiko er, at trinene har tilstrækkelig dybde til at hele foden kan placeres sikkert på trinet. Hvis trappen også udføres med stødtrin som lukket trappe, mindskes risiko for at hænge fast ved færdsel op ad trappen.
Hvis en bolig planlægges i to eller flere etager, kan man med fordel forberede, at der på et senere tidspunkt kan etableres en elevator mellem etagerne. Der er nu elevatorer på markedet beregnet på boliger, og som ikke kræver store konstruktionsmæssige ændringer.
2.12.2 Trappetrin
En trappes trin (dvs. stigning og grund, jf. figur 15) bør overholde følgende trapperegel (SBi-anvisning 230):
2 stigninger + 1 grund = 0,61-0,63 meter.
Trappereglen er baseret på skridtlængden for en voksen person med gennemsnitlig højde.
Figur 15. Definitioner på delelementer af en trappe.
Hvis man vil tage særlig hensyn til personer med en lidt kortere skridtlængde, fx børn og ældre, kan en trappe med trin efter reglen:
2 stigninger + 1 grund = 0,60-0,62 meter
anvendes, fx med en stigning på 0,15 meter og en grund på 0,30 meter (SINTEF Byggforsk, 2005).
2.12.3 Håndlister
Der bør være håndlister i begge sider af trappen, som bør sidde i højden 0,8-1,0 meter målt over trinforkanten. Håndlisterne bør være gribeegnede med et ovalt, cirkulært eller afrundet tværsnit, så der er mulighed for at få god støtte, specielt ved færdsel nedad.
2.12.4 Værn
Trapper med mere end 0,3 meter fri lysning (åbning) til en af siderne bør have værn i en højde på mindst 1,2 meter. Der bør være håndlister i en højde og udformning, som gør dem nemme at gribe om og støtte sig til.
2.12.5 Trappens udformning
En halvsvingstrappe med to lige løb og mellemrepos anbefales, da denne har vist sig sikrest at færdes på jf. figur 16.
Figur 16. Halvsvings-trappe med to lige løb og mellemrepos.
Kvartsvings- og halvsvings-trapper med skæve trin uden repos samt spindeltrapper kan være vanskelige at gå på og bør i videst muligt omfang undgås.
En ligeløbstrappe uden mellemrepos kan på grund af højden udgøre en risiko ved eventuelt fald på trappen.
Se mere om trapper i den kommende SBi-anvisning Småhuse – indretning og funktion (de Place Hansen et al., under udarbejdelse).